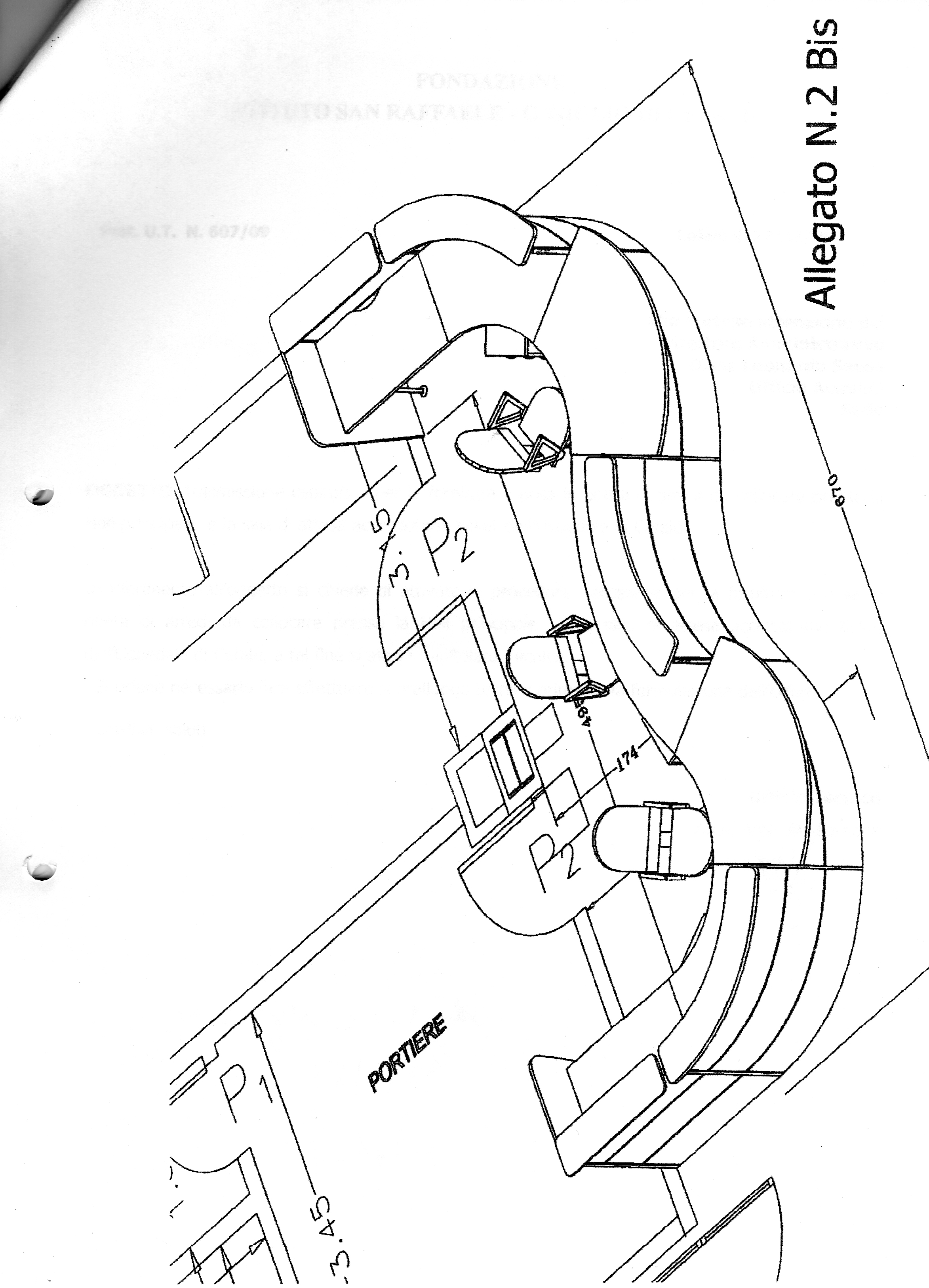
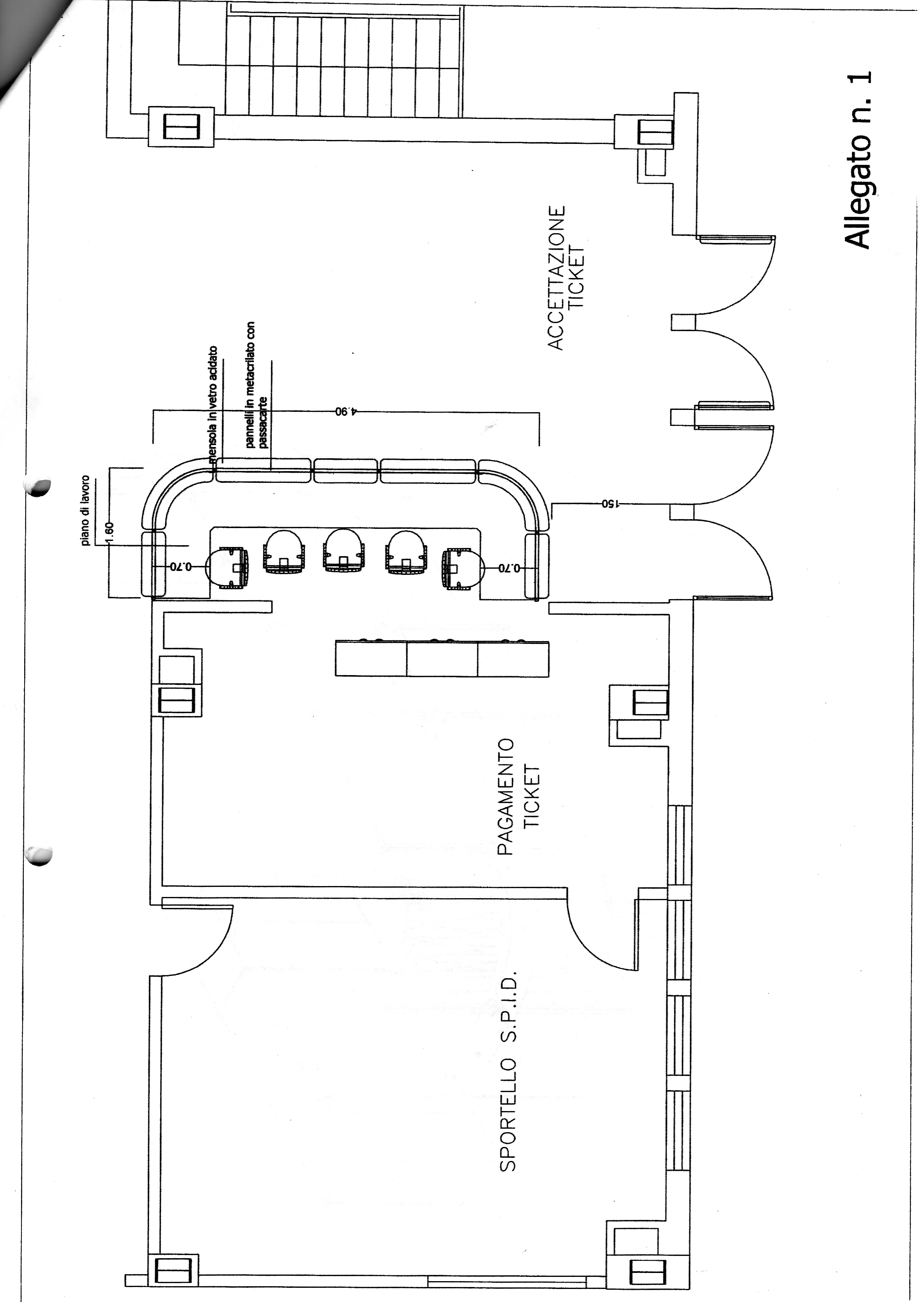
Questa Fondazione, senza alcun impegno definitivo, deve procedere all'acquisto di di arredi da allocare presso la hall principale e le sale di attesa di accettazione e ticket. Tutti i documenti di gara sono riportati in "materiale di approfondimento".




